Quality and value are paramount in this impressive offering from Rice Homes. With 2,369 sq. ft.of finished living area this 4 bedroom, 3 bath home is sure to please. Features include: open concept living area with 9 & 10' ceilings,gas fireplace, centre island with kitchen, 3 appliances, main floor laundry, master ensuite with walk in closet, pre-engineered hardwood floors, front and rear covered porches, full partially finished basement, Hardie Board exterior for low maintenance. Concrete drive & walkway. Call or email L.A. for long list of standard features and finishes. Newport Landing features an incredible location just a short distance from all the amenities Grand Bend is famous for. Walk to shopping, beach, medical and restaurants! Noe! short term rentals are not allowed in this development, enforced by restrictive covenants registered on title. Price includes HST for Purchasers buying as principal residence. Property has not been assessed yet. (id:53488)
| MLS® Number | X12279796 |
| Property Type | Single Family |
| Community Name | Grand Bend |
| Amenities Near By | Beach, Golf Nearby |
| Equipment Type | None |
| Features | Cul-de-sac, Level Lot, Irregular Lot Size, Flat Site, Sump Pump |
| Parking Space Total | 6 |
| Rental Equipment Type | None |
| Bathroom Total | 3 |
| Bedrooms Above Ground | 2 |
| Bedrooms Below Ground | 2 |
| Bedrooms Total | 4 |
| Amenities | Fireplace(s) |
| Appliances | Garage Door Opener Remote(s), Water Heater, Water Meter |
| Architectural Style | Bungalow |
| Basement Development | Partially Finished |
| Basement Type | N/a (partially Finished) |
| Construction Style Attachment | Detached |
| Cooling Type | Central Air Conditioning, Air Exchanger |
| Exterior Finish | Hardboard, Stone |
| Fireplace Present | Yes |
| Foundation Type | Poured Concrete |
| Heating Fuel | Natural Gas |
| Heating Type | Forced Air |
| Stories Total | 1 |
| Size Interior | 1,100 - 1,500 Ft2 |
| Type | House |
| Utility Water | Municipal Water |
| Attached Garage | |
| Garage |
| Acreage | No |
| Land Amenities | Beach, Golf Nearby |
| Sewer | Sanitary Sewer |
| Size Depth | 100 Ft ,3 In |
| Size Frontage | 53 Ft ,8 In |
| Size Irregular | 53.7 X 100.3 Ft |
| Size Total Text | 53.7 X 100.3 Ft |
| Zoning Description | R4-2 (h12) |
| Level | Type | Length | Width | Dimensions |
|---|---|---|---|---|
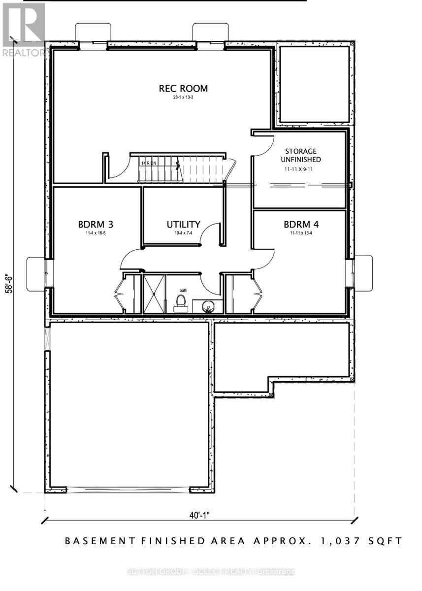
| Lower Level | Utility Room | 3.15 m | 2.24 m | 3.15 m x 2.24 m |
| Lower Level | Other | 3.63 m | 3.02 m | 3.63 m x 3.02 m |
| Lower Level | Recreational, Games Room | 8.79 m | 4.04 m | 8.79 m x 4.04 m |
| Lower Level | Bedroom 3 | 5 m | 3.45 m | 5 m x 3.45 m |
| Lower Level | Bedroom 4 | 4.06 m | 3.63 m | 4.06 m x 3.63 m |
| Main Level | Foyer | 2.26 m | 1.43 m | 2.26 m x 1.43 m |
| Main Level | Kitchen | 3.89 m | 3.51 m | 3.89 m x 3.51 m |
| Main Level | Dining Room | 4.98 m | 3.51 m | 4.98 m x 3.51 m |
| Main Level | Living Room | 2.21 m | 4.29 m | 2.21 m x 4.29 m |
| Main Level | Primary Bedroom | 4.27 m | 3.51 m | 4.27 m x 3.51 m |
| Main Level | Bedroom 2 | 3.51 m | 3.35 m | 3.51 m x 3.35 m |
| Main Level | Laundry Room | 2.13 m | 1.83 m | 2.13 m x 1.83 m |
https://www.realtor.ca/real-estate/28594545/19-lois-court-lambton-shores-grand-bend-grand-bend
Contact us for more information
Ruth Dean
Salesperson
(519) 433-4331
No Favourites Found
The trademarks REALTOR®, REALTORS®, and the REALTOR® logo are controlled by The Canadian Real Estate Association (CREA) and identify real estate professionals who are members of CREA. The trademarks MLS®, Multiple Listing Service® and the associated logos are owned by The Canadian Real Estate Association (CREA) and identify the quality of services provided by real estate professionals who are members of CREA. The trademark DDF® is owned by The Canadian Real Estate Association (CREA) and identifies CREA's Data Distribution Facility (DDF®)
Sales Representative for Royal Lepage Triland Realty, Brokerage
YOUR LONDON, ONTARIO REALTOR®

Phone: 226-268-9880
You can rely on us to be a realtor who will advocate for you and strive to get you what you want. Reach out to us today- We're excited to hear from you!

Phone: 519-639-0228
© 2023 Melanie Pearce- All rights reserved | Made with ❤️ by Jet Branding