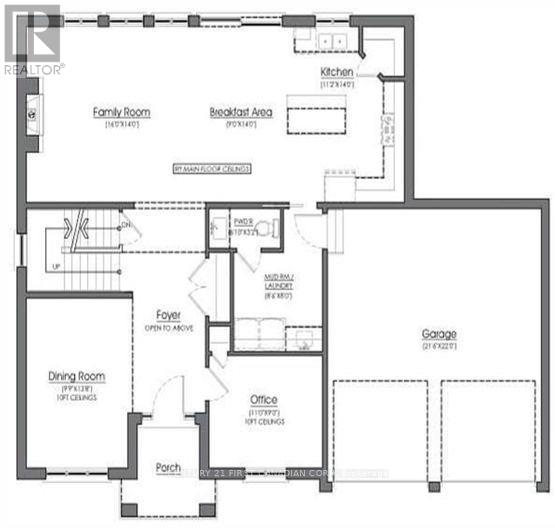
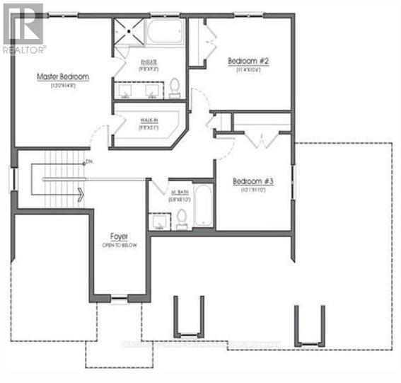
Royal Oak Homes proudly presents the Auburn I, one of our newest and most striking models, as a TO BE BUILT home in the prestigious Sunningdale Crossings community in North London. This thoughtfully designed 3-bedroom, 2.5-bath residence with a 2-car garage combines style, functionality, and comfort. The main floor features an open-concept family room with soaring 12-foot ceilings that create an airy, light-filled atmosphere, along with a dining area and kitchen enhanced with arched walkways for added appeal and access to a hidden pantryperfect for entertaining and everyday living. The upper floor hosts all three bedrooms as well as a convenient laundry area. The spacious primary suite includes a dressing room and luxurious 5-piece ensuite, while the two additional bedrooms each enjoy access to their own bathroom, offering privacy and comfort for the whole family. Enjoy quick access to parks, scenic trails, top-rated schools, shopping, and major highways. More plans and lots are available. Photos are from previous models for illustrative purposes; each model differs in design and client selections. (id:53488)
| MLS® Number | X12382711 |
| Property Type | Single Family |
| Community Name | North S |
| Amenities Near By | Park, Public Transit, Golf Nearby |
| Community Features | School Bus |
| Features | Flat Site, Sump Pump |
| Parking Space Total | 4 |
| Bathroom Total | 3 |
| Bedrooms Above Ground | 3 |
| Bedrooms Total | 3 |
| Age | New Building |
| Amenities | Fireplace(s) |
| Appliances | Garage Door Opener Remote(s), Water Meter |
| Basement Development | Unfinished |
| Basement Type | N/a (unfinished) |
| Construction Style Attachment | Detached |
| Cooling Type | Central Air Conditioning |
| Exterior Finish | Brick, Hardboard |
| Fire Protection | Smoke Detectors |
| Fireplace Present | Yes |
| Fireplace Total | 1 |
| Foundation Type | Poured Concrete |
| Half Bath Total | 1 |
| Heating Fuel | Natural Gas |
| Heating Type | Forced Air |
| Stories Total | 2 |
| Size Interior | 2,000 - 2,500 Ft2 |
| Type | House |
| Utility Water | Municipal Water |
| Attached Garage | |
| Garage |
| Acreage | No |
| Land Amenities | Park, Public Transit, Golf Nearby |
| Sewer | Sanitary Sewer |
| Size Depth | 124 Ft |
| Size Frontage | 60 Ft |
| Size Irregular | 60 X 124 Ft |
| Size Total Text | 60 X 124 Ft |
| Zoning Description | R1-4 |
| Level | Type | Length | Width | Dimensions |
|---|---|---|---|---|
| Main Level | Office | 3.16 m | 2.98 m | 3.16 m x 2.98 m |
| Main Level | Dining Room | 3.71 m | 2.68 m | 3.71 m x 2.68 m |
| Main Level | Living Room | 5.79 m | 5.09 m | 5.79 m x 5.09 m |
| Main Level | Kitchen | 3.71 m | 4.87 m | 3.71 m x 4.87 m |
| Main Level | Pantry | 1.55 m | 2.86 m | 1.55 m x 2.86 m |
| Main Level | Bathroom | 1.95 m | 1.64 m | 1.95 m x 1.64 m |
| Upper Level | Bathroom | 3.04 m | 1.39 m | 3.04 m x 1.39 m |
| Upper Level | Laundry Room | 3.01 m | 1.76 m | 3.01 m x 1.76 m |
| Upper Level | Primary Bedroom | 4.02 m | 4.63 m | 4.02 m x 4.63 m |
| Upper Level | Bedroom 2 | 3.38 m | 4.02 m | 3.38 m x 4.02 m |
| Upper Level | Bedroom 3 | 3.68 m | 3.35 m | 3.68 m x 3.35 m |
| Upper Level | Bathroom | 1.76 m | 5.24 m | 1.76 m x 5.24 m |
| Cable | Available |
| Electricity | Available |
| Sewer | Available |
https://www.realtor.ca/real-estate/28817816/lot-31-white-pine-street-london-north-north-s-north-s
Contact us for more information
Jenny Drygas
Salesperson
(519) 673-3390
No Favourites Found
The trademarks REALTOR®, REALTORS®, and the REALTOR® logo are controlled by The Canadian Real Estate Association (CREA) and identify real estate professionals who are members of CREA. The trademarks MLS®, Multiple Listing Service® and the associated logos are owned by The Canadian Real Estate Association (CREA) and identify the quality of services provided by real estate professionals who are members of CREA. The trademark DDF® is owned by The Canadian Real Estate Association (CREA) and identifies CREA's Data Distribution Facility (DDF®)
Sales Representative for Royal Lepage Triland Realty, Brokerage
YOUR LONDON, ONTARIO REALTOR®

Phone: 226-268-9880
You can rely on us to be a realtor who will advocate for you and strive to get you what you want. Reach out to us today- We're excited to hear from you!

Phone: 519-639-0228
© 2023 Melanie Pearce- All rights reserved | Made with ❤️ by Jet Branding